Mühle Apartments
Invest and enjoy in Montafon – modern comfort in the Alps –
This stylish new-build project is being developed in the heart of Montafon. The architecture combines modern design with natural materials such as larch wood and exposed concrete, allowing the building to blend perfectly into the Alpine surroundings.
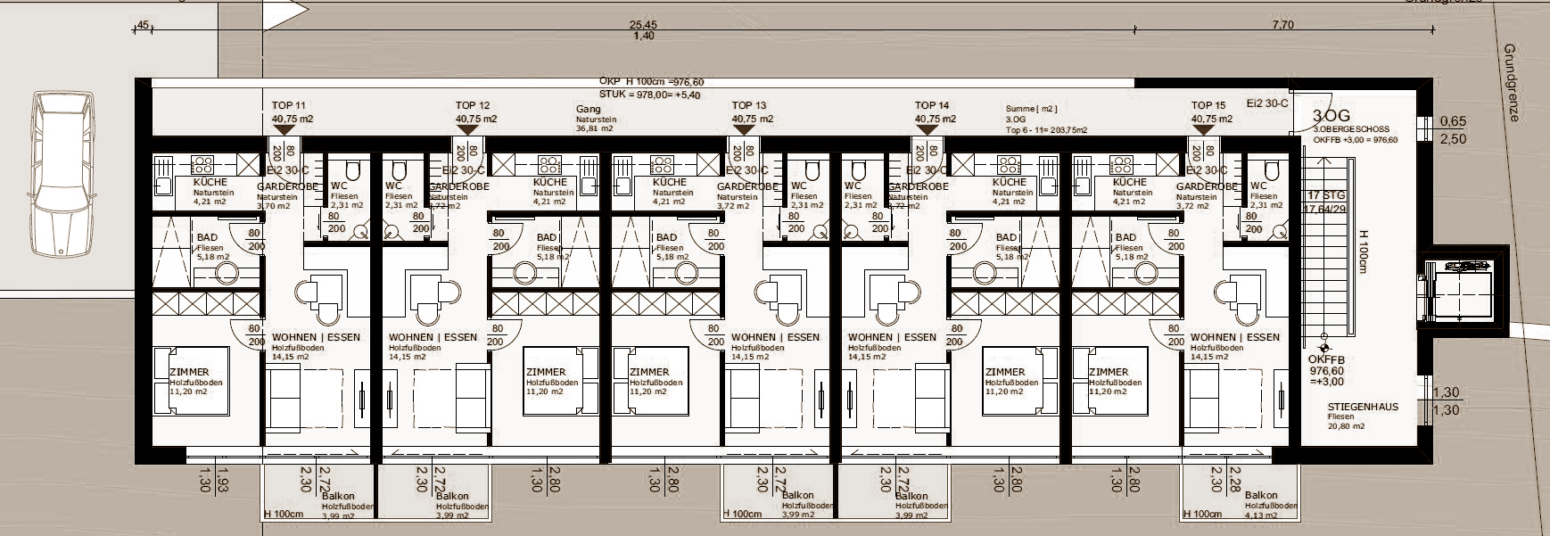
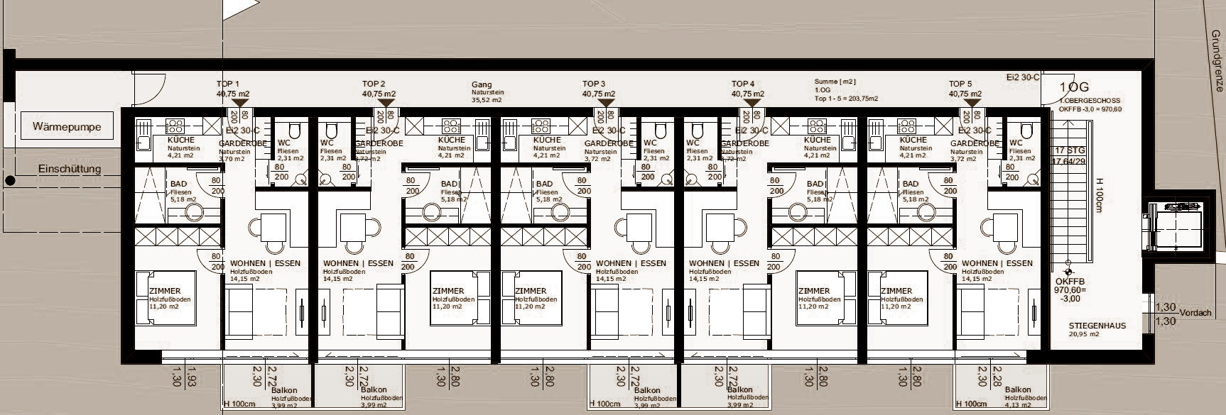
The apartments are optimally laid out and offer plenty of light thanks to large triple-glazed windows. Underfloor heating based on an energy-efficient air heat pump ensures cosy comfort, while electrically operated blinds provide ideal light and sun protection. Buyers enjoy high-quality finishes: elegant oak parquet floors, ceramic tiles in the bathroom and toilet, and sanitary ware from top brands such as Hans Grohe and Villeroy & Boch.
Each apartment also has its own balcony or terrace with mountain views.
A lift connects all floors from the underground garage and storage rooms to the top floor. Everything has been designed to make a stay in the Alps not only beautiful, but also practical and sustainable.
MODERN Functionality in a Traditional Environment
The apartments meet today’s requirements in terms of comfort, technology and sustainability. The result is a luxurious yet authentic living space that combines traditional alpine charm with modern living comfort. Every season offers plenty of opportunities to enjoy the breathtaking nature and surroundings.
ACCESSIBILITY Mühle Apartments
Mühle Apartments is easily accessible by car, just over 850 kilometres from Utrecht.
In addition, the nearby airports of Innsbruck and Zurich and excellent train connections offer several convenient options for reaching this beautiful area.
EVERYTHING you could wish for within walking distance of your apartment:
3-minute walk to the valley station
2-minute walk to the cycling and hiking trail
1-minute walk to the cross-country ski trail
3-minute walk to the supermarket
4-minute walk to the village centre
1-minute walk to the ski slope
Advantages for investors
• No time investment: Rental and administration are handled entirely by a reliable operator.
• Security of Real Estate: An investment with the stability of real estate and attractive returns.
• Professional Management: Local operator with years of experience in this region and knowledge of tourism ensures stable occupancy rates
• Value retention: Regular maintenance by the housekeeping team guarantees the quality and value of the property.
• The finish is both aesthetically appealing and functional. Thanks to the high-quality construction and the use of sustainable materials, the flats retain an inviting and cosy ambience.
• Invest in a property that combines luxury, comfort and tradition in the heart of the Alps.








