Das Hochrindl is een uniek nieuwbouwproject in de Kärntner Nockberge, gelegen op 1.600 meter hoogte in het schilderachtige Hochrindl-Kegel. Het project combineert alpiene levensstijl met modern comfort en uitstekende infrastructuur, perfect voor zowel natuurliefhebbers als wintersporters.
Van dit type zijn de volgende appartementen beschikbaar:
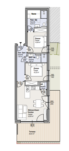
- Haus 1, Top 1: Woonoppervlakte 65,13 m2, Terras/Balkon 26 m2, begane grond
- Haus 2, Top 1: Woonoppervlakte 65,13 m2, Terras/Balkon 26 m2, begane grond
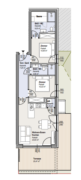
- Haus 3, Top 1: Woonoppervlakte 65,13 m2, Terras/Balkon 25 m2, begane grond
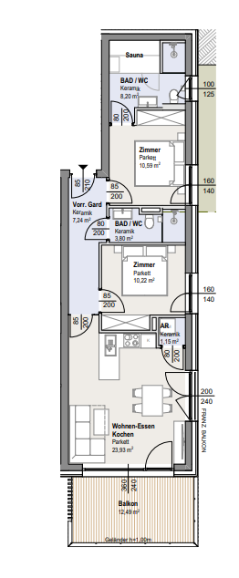
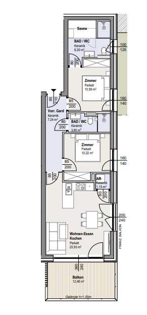
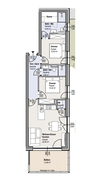
- Haus 1, Top 4: Woonoppervlakte 65,13 m2, Terras/Balkon 12 m2, eerste verdieping
- Haus 2, Top 4: Woonoppervlakte 65,13 m2, Terras/Balkon 12 m2, eerste verdieping
- Haus 3, Top 4: Woonoppervlakte 65,13 m2, Terras/Balkon 12 m2, eerste verdieping
Locatie & Omgeving
Hochrindl-Kegel ligt midden in het natuurparadijs van de Kärntner Nockberge en biedt het hele jaar door buitengewone recreatiemogelijkheden:
Zomer:
- Wandelroutes met panoramisch uitzicht op loopafstand
- Authentieke berghutten
- Panorama mountainbike routes
Winter:
- Charmant skigebied op loopafstand met 20 kilometer piste
- Langlaufloipes met weids uitzicht
- Sneeuwschoenwandelingen
- Rodelbanen
Skigebieden rondom Hochrindl
Hochrindl ligt centraal in de Nockberge-regio en vormt een ideale uitvalsbasis om meerdere skigebieden in de omgeving te ontdekken. Dankzij de korte afstanden kun je gemakkelijk verschillende pistes combineren, van grote afdalingen tot rustige oefengebieden.
Afstanden vanaf Hochrindl:
-
Bad Kleinkirchheim: ca. 16–17 km
-
Turracher Höhe: ca. 10–11 km
Omvang van de skigebieden:
-
Hochrindl: ~20 km aan pistes – klein, overzichtelijk en perfecte condities.
-
Bad Kleinkirchheim: ~100–103 km aan pistes – een van de grootste gebieden in de regio, ideaal voor langere afdalingen.
-
Turracher Höhe: ~42–43 km aan pistes – middelgroot, met brede afdalingen en een snowpark.
Architectuur
De architectuur van Das Hochrindl integreert de gebouwen harmonieus in het alpine landschap. Het project bestaat uit drie gebouwen, met in totaal 25 appartementen
Kenmerken:
- Klassiek zadeldak met kleinschalige dakkapellen, typisch voor de regio
- Moderne landhuisstijl met houten balustrades die het alpiene karakter ondersteunen
- Ruime tussenruimtes als privétuinen voor rust en ontspanning
Highlights:
- Gezellige landhuis charme met moderne accenten
- Appartementen met 2 tot 4 kamers (44 m² – 88 m²)
- Ruime buitenruimtes (tuinen, balkons, terrassen)
- Sommige appartementen met privésauna
- Royale ondergrondse parkeergarage met lift
Zweitwohnsitz of Toeristische Verhuur
De Zweitwohnsitzwidmung (tweede woning bestemming) biedt unieke flexibiliteit: u bepaalt zelf hoe u uw investering gebruikt.
Zweitwohnsitz
Voordelen:
- Volledige beschikbaarheid zonder verhuurverplichting
- Spontaan gebruik mogelijk
Toeristische Verhuur
Voordelen:
- Zorgeloos inkomen via professioneel beheer
- Eigen gebruik blijft mogelijk na afstemming


![Madile_ex3_it3[57]](https://www.dd-secondhome.nl/wp-content/uploads/2025/12/Madile_ex3_it357-scaled.jpg)





